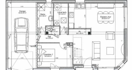
ETG_R_GI_101m2_3ch_P14090

Plan maison 4 pièces 3 chambres Surface maison 101 m2

Maison à étage de 101m2 habitables avec garage intégré.
Entrée sur espace jour de 36m2, 1 chambre, cellier, WC, salle de bain et à l étage 2 chambres dont une avec dressing, salle de bain, salon d étage.

Construire ce modèle ?

    * Champs obligatoires

    Vos informations sont traitées par HEXAOM et transmises à un conseiller commercial qui vous contactera afin de répondre à votre demande. Les plans et images présentés sur notre site sont la propriété d’HEXAOM et ne peuvent pas être reproduits sans son accord. Pour retrouver notre politique de protection des données personnelles et exercer vos droits conformément à la « loi informatique et liberté » cliquez-ici.