ETG_R_GI_113m2_3ch_P1641

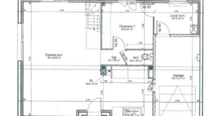
Plan maison 4 pièces 3 chambres Surface maison 113 m2

Maison à étage de 113m2 habitables avec garage intégré.
Entrée sur espace jour de 44m2, 1 chambre, cellier, WC et à l étage 2 chambres, salle de bain, salon d étage, menuiseries aluminium.

Construire ce modèle ?

    * Champs obligatoires

    Vos informations sont traitées par HEXAOM et transmises à un conseiller commercial qui vous contactera afin de répondre à votre demande. Les plans et images présentés sur notre site sont la propriété d’HEXAOM et ne peuvent pas être reproduits sans son accord. Pour retrouver notre politique de protection des données personnelles et exercer vos droits conformément à la « loi informatique et liberté » cliquez-ici.