PLP_V_SG_97m2_3ch_P13507

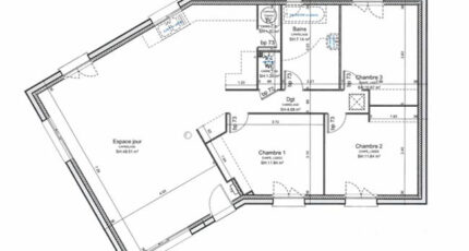
Plan maison 4 pièces 3 chambres Surface maison 97 m2

Maison de plain pied de 97m2 habitables.
Entrée sur bel espace jour (séjour-cuisine) de 48m2 - 3 chambres - WC indépendant - salle de bain - menuiseries et volets roulants aluminium.

Construire ce modèle ?

    * Champs obligatoires

    Vos informations sont traitées par HEXAOM et transmises à un conseiller commercial qui vous contactera afin de répondre à votre demande. Les plans et images présentés sur notre site sont la propriété d’HEXAOM et ne peuvent pas être reproduits sans son accord. Pour retrouver notre politique de protection des données personnelles et exercer vos droits conformément à la « loi informatique et liberté » cliquez-ici.